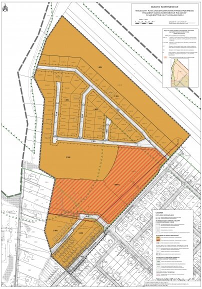
Od 2 lutego do 11 marca 2026 roku mieszkańcy Skierniewic mogą zgłaszać uwagi do projektu miejscowego planu zagospodarowania przestrzennego dla około 20-hektarowego obszaru położonego w sąsiedztwie ulicy Zagajnikowej (w północnej części miasta).
W prognozie oddziaływania na środowisko czytamy, że dokument powstał „w związku z opracowaniem planu ogólnego i ograniczonymi możliwościami wyznaczenia w nim nowych terenów przeznaczonych pod zabudowę mieszkaniową”.
Uzasadnienie przypomina, że teren ten już wcześniej „uzyskał przywilej zabudowy” i był przygotowywany pod inwestycje mieszkaniowe, w tym poprzez wyłączenie gruntów leśnych z produkcji.
Obszar objęty planem leży w bezpośrednim sąsiedztwie Bolimowskiego Parku Krajobrazowego, a jego północno-zachodnia część znajduje się w otulinie tego parku. Fragment terenu został dodatkowo wskazany jako krajobraz priorytetowy „Puszcza Bolimowska – strefa B” w audycie krajobrazowym województwa łódzkiego.
W dokumentach planistycznych miasto podkreśla zgodność projektu z obowiązującym studium uwarunkowań.
Co wolno będzie budować
Zgodnie z projektem planu, dominującą funkcją terenu ma być zabudowa mieszkaniowa jednorodzinna – w formie wolnostojącej, bliźniaczej oraz szeregowej. Dopuszczono także teren mieszkaniowo-usługowy (MN-U), gdzie oprócz domów możliwe będą lokalne usługi. Dla zabudowy usługowej dopuszcza się nawet 60 proc. powierzchni zabudowy działki, a minimalny udział powierzchni biologicznie czynnej to 30 proc.
Dokument nie rozstrzyga, jakie konkretnie usługi mogą się tu pojawić, poza katalogiem zakazów (m.in. brak dużych obiektów handlowych powyżej 2000 m kw., zakaz działalności produkcyjnej i przetwórstwa).
Wysokość, gęstość, skala – parametry, które zmienią krajobraz
Plan dopuszcza budynki o wysokości do 9,5 metra, co w praktyce oznacza pełne dwie kondygnacje i użytkowe poddasze lub dach płaski.
Prognoza oddziaływania na środowisko wskazuje wprost, że zabudowa doprowadzi do trwałej utraty części terenów biologicznie czynnych, a lokalne ekosystemy oparte dziś na nieużytkach, zadrzewieniach sukcesyjnych i terenach otwartych ulegną przekształceniu.
Cisza, powietrze, woda
W projekcie wprowadzono zakaz lokalizacji przedsięwzięć mogących znacząco oddziaływać na środowisko. Wszystkie tereny mieszkaniowe zostały zakwalifikowane jako obszary chronione akustycznie. Prognoza wskazuje na stosunkowo płytkie zaleganie wód gruntowych (0,5–2 m), co oznacza konieczność szczególnych zabezpieczeń budynków i infrastruktury. Plan nakazuje stosowanie nisko- lub bezemisyjnych źródeł ciepła, ale nie analizuje skumulowanego efektu nowej zabudowy na lokalny mikroklimat.
Przez obszar planu przebiega linia elektroenergetyczna 110 kV. W dokumentach zapisano 35-metrową strefę ochronną (po 17,5 m z każdej strony), w której obowiązują ograniczenia zabudowy.
Miasto zachęca do udziału w konsultacjach społecznych, ale doświadczenie podobnych procesów pokazuje, że uwagi mieszkańców najczęściej dotyczą detali, a nie fundamentalnych założeń planu.
MOŻE CIĘ ZAINTERESOWAĆ:
Segmenty w okolicy Warszawy: przewodnik po najlepszych lokalizacjach i inwestycjach mieszkaniowych
Konsultacje społeczne projektu miejscowego planu zagospodarowania przestrzennego dla fragmentu Skierniewic położonego w sąsiedztwie ulicy Zagajnikowej (2 lutego – 11 marca 2026 r.) nie są wyłącznie techniczną procedurą planistyczną. To element znacznie szerszego procesu, który w ostatnich miesiącach toczy się w niemal wszystkich polskich samorządach: nerwowego porządkowania przestrzeni przed wejściem w życie planów ogólnych.
Plan dla około 20 hektarów w północnej części Skierniewic jest więc nie tylko odpowiedzią na lokalne potrzeby, lecz także częścią systemowej zmiany reguł gry w planowaniu przestrzennym.
Od 2023 roku gminy w całej Polsce pracują nad planami ogólnymi – nowym, obligatoryjnym dokumentem, który ma zastąpić dotychczasowe studia uwarunkowań. Plan ogólny zawęża swobodę wyznaczania nowych terenów pod zabudowę, wzmacnia ochronę ładu przestrzennego i – przynajmniej w założeniu – ogranicza chaotyczną suburbanizację.
W dokumentach dotyczących planu przy ul. Zagajnikowej ta presja została nazwana wprost. W prognozie oddziaływania na środowisko czytamy, że opracowanie mpzp wynika z faktu, iż w planie ogólnym „możliwości wyznaczania nowych terenów przeznaczonych pod zabudowę mieszkaniową będą ograniczone”, a obszar przy Zagajnikowej jest jednym z ostatnich, który można jeszcze „zabezpieczyć” pod rozwój mieszkaniowy zgodnie z obowiązującym studium.
Między miastem a parkiem krajobrazowym
Rejon ulicy Zagajnikowej to obszar, który znajduje się w otulinie Bolimowskiego Parku Krajobrazowego, a fragment został wskazany jako krajobraz priorytetowy „Puszcza Bolimowska – strefa B” w audycie krajobrazowym województwa łódzkiego.
Jednym z wątków w uzasadnieniu planu jest informacja o wcześniejszych decyzjach dotyczących tego terenu. Dokument przypomina, że część gruntów leśnych została trwale wyłączona z produkcji leśnej, a już w poprzednich latach planowano tam realizację osiedla mieszkaniowego („Pod Borem”, 87 budynków). W dokumencie czytamy, że „przedmiotowe tereny uzyskały przywilej zabudowy”. Zatem można wnioskować również, że plan nie tyle otwiera nowy kierunek rozwoju, co domyka proces zapoczątkowany znacznie wcześniej.
Oś czasu decyzji administracyjnych wokół terenu przy ul. Zagajnikowej
Uwaga redakcyjna: poniższa oś czasu opiera się wyłącznie na informacjach ujawnionych w dokumentach planistycznych.
1990 - wyłączenie gruntów leśnych z produkcji – pierwszy sygnał inwestycyjny. W uzasadnieniu projektu planu pojawia się kluczowa informacja historyczna: „Zgoda na przeznaczenie w planie zagospodarowania przestrzennego na cele nierolnicze i nieleśne gruntów leśnych została wydana 27.02.1990 r.” To oznacza, że część terenu straciła status leśny już ponad 30 lat temu, co formalnie otworzyło drogę do przyszłej zabudowy – nawet jeśli przez długie lata nie była ona realizowana.
2011 - zgoda RDLP na trwałe wyłączenie kolejnych gruntów leśnych. „Dyrektor Regionalnej Dyrekcji Lasów Państwowych w Łodzi […] zezwolił na trwałe wyłączenie z produkcji leśnej 5,4519 ha gruntów leśnych z przeznaczeniem pod budowę osiedla budownictwa jednorodzinnego »Pod Borem« (87 jednostek mieszkalnych)”.
2010-2020 - brak miejscowego planu – rozwój przez decyzje WZ. „Obszar opracowania nie posiada miejscowego planu zagospodarowania przestrzennego”. „Pojedyncze budynki mieszkalne wolnostojące powstały w oparciu o decyzje o warunkach zabudowy”.
31 sierpnia 2023 - rada miasta przyjmuje Zmianę Studium – II edycję, w której teren przy ul. Zagajnikowej zostaje oznaczony jako: „obszar funkcjonalny o dominującej funkcji zabudowy mieszkaniowej jednorodzinnej i usługowej (symbol 7 MN, U)”.
17 kwietnia 2025 - rada miasta podjęła formalną decyzję o rozpoczęciu prac nad planem. „O potrzebie sporządzenia planu zadecydowała Rada Miasta Skierniewice…”
Wiosna 2025 - zbieranie wniosków do planu – cisza społeczna. Dokumenty odnotowują: „Wnioski do planu […] nie wpłynęły”.
Grudzień 2025 - styczeń 2026 - powstaje projekt planu, prognoza oddziaływania na środowisko i uzasadnienie – dokumenty wyraźnie wiążą mpzp z pracami nad planem ogólnym. „W związku z opracowaniem planu ogólnego i ograniczonymi możliwościami wyznaczenia nowych terenów mieszkaniowych…”
Jak oceniasz ten artykuł?
Głosów: 15





1Komentarze
Portal eglos.pl nie ponosi odpowiedzialności za treść wpisu. Wpisy niezwiązane z tematem, wulgarne, obraźliwe lub naruszające prawo będą usuwane. Zapraszamy zainteresowanych do merytorycznej dyskusji na powyższy temat.
Pieniądze wyrzucone w błoto. Miasto chce robić plan zagospodarowania dla terenu na którym jest wydane i realizowane pozwolenie na budowę. Kolejna bezsensowna decyzja Rady Miasta, pana Boguszewskiego i pana Prezydenta Jażdżyka.